Réf : 86338286
Le Cannet
1 850 000€

525m²

8 pièces

2 niveaux
Située dans un secteur recherché, cette propriété bénéficie d’une vue mer dégagée et offre à la fois un bien existant et un potentiel de transformation rare.
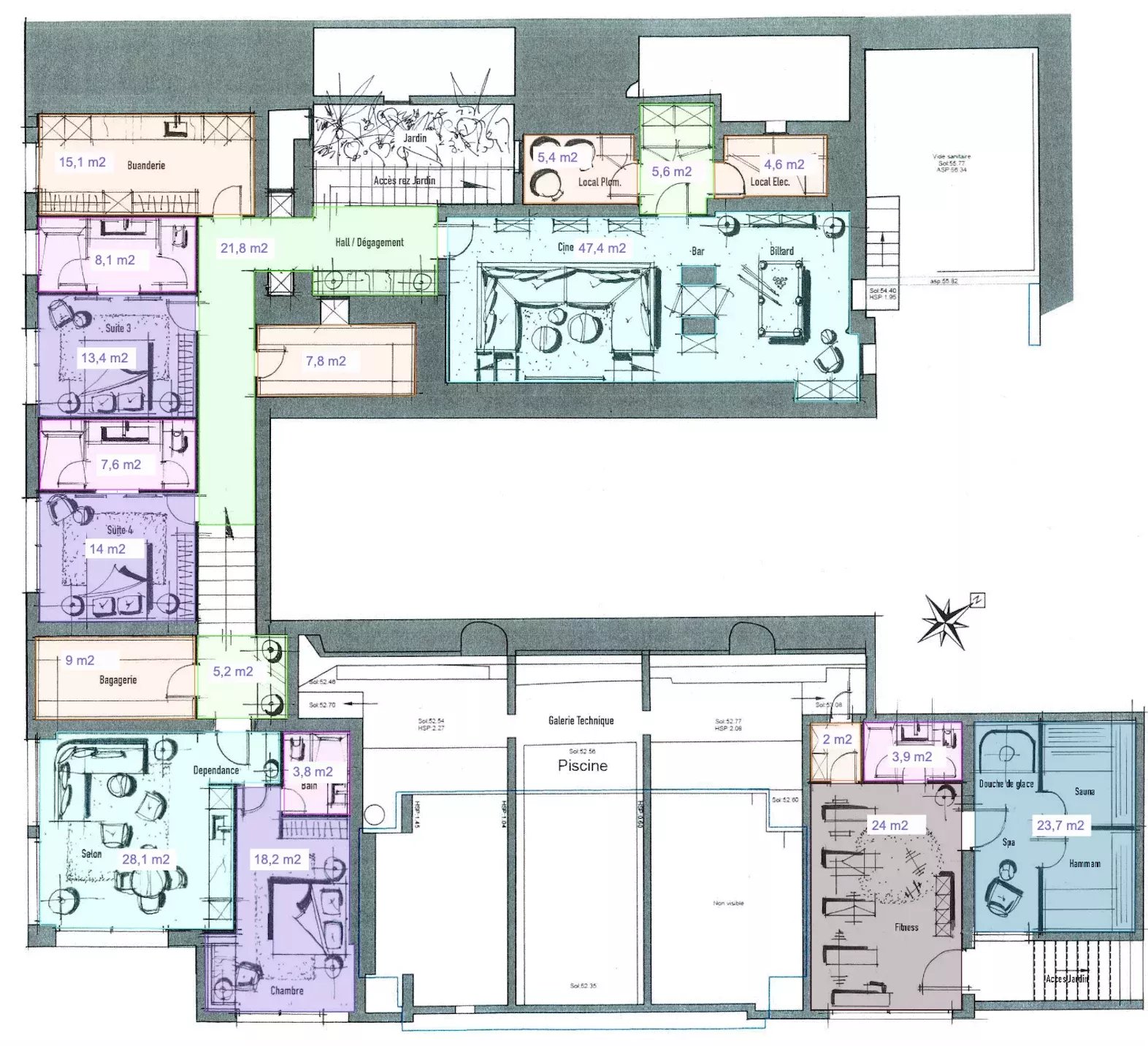
L’existant :
La propriété comprend actuellement :
Une villa principale d’environ 180 m²
Une annexe indépendante de 60 m²
Une piscine avec son local technique
Nombreux stationnements
Le projet validé :
Un permis de construire conforme a été accordé, autorisant la réalisation d’un projet d’envergure :
Une villa principale neuve de 467,25 m² habitables
Une annexe de 57,67 m² habitables
Soit un total de 525 m² habitables
Une surface de plancher de 562 m²
Une emprise au sol de 250 m² (villa) et 71 m² (annexe)
Trois places de stationnement
Atouts :
Vue mer panoramique
Bien existant immédiatement habitable
Projet contemporain validé et conforme
Piscine et annexe déjà présentes
Fort potentiel de valorisation
Cette propriété représente une opportunité rare : profiter d’un bien existant tout en ayant la possibilité de réaliser une villa contemporaine d’exception, dans le respect du permis de construire accordé.
Diagnostics
Le Cannet
1 850 000€
Être rappelé